Innovativ, wissbegierig und ganzheitlich

Seit 1990 haben wir über 2000 Projekte erfolgreich umgesetzt. Unser Team ist international.

Schön, dass Sie hier sind

Wir sind Beate Brandt und Bert Schädlich, Diplomingenieure für Bauwesen und Geodäsie, Unternehmer, Geschäftsführer und Inhaber der GIL. Wir lösen selbst umfangreiche und komplizierte Vorhaben und Dank unserer systemischen Entwicklungsarbeit, denken wir unser Unternehmen schon ins nächste Jahrhundert.

 

Bearte Brandt und Bert Schädlich

Wer wir sind

1990 gegründet
mehrere Fachgebiete
Große und interessante Projekte
Erfahrene Fachkräfte, die ihr Fachwissen gerne weitergeben

Bauingenieurwesen Planung

„Meine Mission ist es, bei der Vorbereitung auf zu erwartende Extreme im Bereich Wasser hilfreiche Lösungen zu liefern, auch für nachfolgende Generationen.‟
Portrait von: Bearte Brandt
Beate Brandt
Geschäftsführerin

Bei uns erhalten Sie die Beratung und Begleitung von Planungsprozessen in der Schnittstelle Tiefbau, Hochbau und Gewässer.

Geomatik

„Ich möchte die Verkehrswende zum Nutzen der Umwelt und der nachrückenden Generationen vorantreiben und mit umsetzen.‟
Portrait von: Bert Schädlich
Bert Schädlich
Geschäftsführer

Dank unserer Tachymeter und Laserscanner erfassen wir Geodaten für die verschiedensten Bedürfnisse unserer Kunden. Wir scannen Gebäude, Bahnhöfe, Brücken, messen Leitungen, Straßen und Kanäle. 

Kurz: Wir vermessen alles außer Grundstücksgrenzen. Aus unseren Daten erzeugen wir naturgetreue 3D-Modelle, Pläne, Schnitte, Ansichten, digitale Geländemodelle, befüllen Datenbanken oder erstellen digitale Zwillinge. Alles zusammen sind unsere Leistungen eine fundamentale Grundlage für die BIM-Planung.

Bauingenieurwesen und Planung von der GIL GmbH

Die Besonderheiten unserer Standorte

Bautzen:

Platz der Kunst, Ästhetik und Technik; hochprofessionelles Zeichenbüro; innovative Geomatik, Ingenieurvermessung und Laserscanning; offenes Miteinander-Arbeiten; Arbeitsplatz-Sharing; fachlich hochqualifizierte Zuarbeiten nach Dresden und Berlin; Treffpunkt für Experten und Konferenzstätte.

Anreiz für unsere Mitarbeiter und Kollegen:

Arbeitszeitfenster frei wählbar innerhalb 24/7; künstlerisch gestaltetes Bürohaus mit Teich und Garten, großzügige Büros mit Gemeinschafts- und Konferenzraum mit Blick ins Grüne; eigene Parkplätze, Ingenieurvermessung und Laserscanning im gesamten Bundesgebiet

Dresden:

Nähe zu Dresdener Hochschulen und Universitäten durch Werkstudentenverträge und Arbeitsplätze für frische Absolventen; BIM-Schwerpunkt bundesweit; Konstruktiver Ingenieurbau und Infrastrukturplanung; ; Fachexpertise in Elektrotechnik; Bewältigung komplexer Großprojekte; Nischen-innovativ; Einsatzgebiete: Sachsen, Brandenburg, Thüringen und in unseren Spezialgebieten auch bundesweit

Anreiz für unsere Mitarbeiter und Kollegen:

Konzept für 38- bis 35-Stunden-Woche; möglich durch gutes Anforderungsmanagement; mondän und kunstvoll

Berlin:

BIM-Schwerpunkt; Bezug zu (Landschafts-)Architektur; Infrastrukturplanung und Wasserbau; künstlerische Darstellung und (Geo)Visualisierung des Planungsergebnisses; Bewältigung komplexer Großprojekte; Arbeitsplatz-Sharing; innovative Geomatik; Einsatzgebiete: Berlin; Potsdam; Magdeburg, Niedersachsen; Hessen; Bayern.

Anreiz für unsere Mitarbeiter und Kollegen:

Konzept für 38- bis 35-Stunden-Woche; möglich durch gutes Anforderungsmanagement; weltoffen, fröhlich, selbstbestimmt, innovativ; gemeinsam

Neues in der GIL –
Stadtplanerin & Freiraumexpertin

TEODORA PEŠIĆStadtplanerin & Freiraumexpertin
Mit Schwerpunkt auf Straßen- und Freianlagenplanung gestalte ich öffentliche Räume, die Funktion, Sicherheit und Aufenthaltsqualität verbinden. Meine Arbeit reicht von der konzeptionellen Planung bis zur zeichnerischen Umsetzung – von Lage- und Höhenplänen bis zu Quer- und Längsschnitten für Straßen, Plätze und Verkehrsflächen.

Ich lege besonderen Wert darauf, dass die Bedürfnisse der Nutzer:innen im Mittelpunkt stehen. Wenig genutzte oder unklare Flächen entwickle ich gezielt weiter, gestalte Grünbereiche zur Verbesserung des Mikroklimas und schaffe Orte, die zum Verweilen und Erleben einladen.

Bei der GIL GmbH kann ich meine fachliche Expertise, Softwarekenntnisse und mein Verständnis für den öffentlichen Raum in interdisziplinären Teams einbringen. So entstehen nachhaltige, funktionale und qualitativ hochwertige Lösungen für urbane Räume

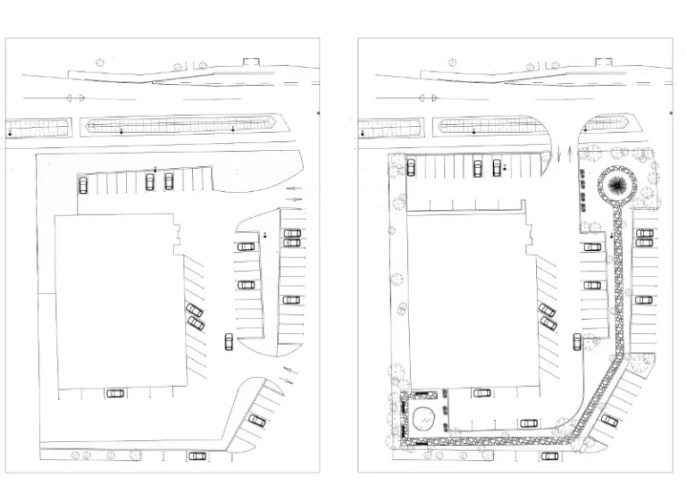
Als ausgebildete Stadtplanerin mit einem besonderen Fokus auf die Gestaltung qualitätsvoller Freiräume analysierte ich das bislang untergenutzte Areal hinsichtlich seiner funktionalen Defizite und räumlichen Potenziale. Ziel war es, einen visuell ansprechenden und zugleich nutzbaren Raum zu schaffen, der Aufenthaltsqualität und Wohlbefinden der Menschen stärkt.

Durch die Neuordnung der Erschließung und die Bündelung der Zufahrten mit direkter Anbindung an die Hauptstraße konnten zwei separate private Zufahrten entfallen. Dies reduzierte versiegelte Flächen, verbesserte die Verkehrssicherheit und ermöglichte die Gewinnung zusätzlicher Flächen für Stellplätze sowie qualitätsvolle Grünbereiche.

Die Freiflächen wurden als differenziert nutzbare Aufenthaltsräume konzipiert: Bepflanzte Pufferzonen dienen als visuelle Abschirmung und wirksamer Lärmschutz gegenüber der Straße. Eine zentral platzierte Wasserfläche mit Brunnen fungiert als gestalterischer Schwerpunkt und trägt durch Verdunstungskühlung und akustische Überlagerung zur Verbesserung des Mikroklimas bei. Ergänzende Sitzangebote schaffen attraktive Pausenbereiche und fördern informelle Begegnungen.

Das Gesamtkonzept verbindet funktionale Effizienz mit ökologischen und gestalterischen Qualitäten und stärkt so nachhaltig die Aufenthalts- und Arbeitsqualität innerhalb des Betriebsgeländes.

Neues in der GIL –
Ingenieurin für Elektrotechnik

Mein Name ist Viktoriia Afonina, und ich bin Ingenieurin im Bereich Elektrotechnik. Ich freue mich, Teil des GIL-Teams zu sein und meine Expertise in die Planung elektrischer Systeme einzubringen.

Mein Ziel ist es, sichere und effiziente Lösungen für unsere Kunden zu entwickeln.

In meiner Rolle in der GIL konzentriere ich mich auf:

  • die Planung von elektrischen Netzen,
  • die Entwicklung von Lösungen für den Anschluss an elektrische Netze unterschiedlicher Spannungen,
  • die Prüfung von Projektdokumentationen gemäß den geltenden Normen.

Ich freue mich darauf, meinen Beitrag zur Weiterentwicklung moderner Energienetze zu leisten.

Neues in der GIL –
Planer für Verkehrsanlagen

Hallo, mein Name ist Oliver Neves und ich schreibe aus dem Berliner Büro. Ich bin Ingenieur für Verkehrsanlagen. Ich bin hauptsächlich im Bereich der Straßenplanung tätig und freue mich jeden Tag auf die Herausforderung, Menschen von A nach B zu bringen. Meinen Hintergrund als Ingenieur begann in 2018 als Bauingenieur in den Bereichen Eisenbahn und Straßenumbau. Als ein zukünftiges Ziel, möchte ich mein Wissen in diesen Räumen irgendwie verbinden, um Straßenbahnen zu entwickeln. Persönlich glaube ich, dass die Straßenbahn die beste Lösung für den innerstädtischen Verkehr ist, die die schwere Belastung des Autoverkehrs abbauen könnte. Ich habe vor kurzem über das aktuelle Straßenbahn-Vorhaben in Berlin gelesen und das hat mich wieder inspiriert,

mehr über das Thema zu lesen. Ich freue mich auf das Konzept, wo man,
mit mehreren Leuten in der Tram fahren kann und statt in einem Auto eine Person, einfach 50 Leute
in einem Fahrzeug unterwegs sind. Das könnte vielleicht 50 Autos auf der Straße einsparen. Als Folge
wird es weniger Umweltschäden geben (durch weniger C0 2 , weniger Lärm usw.) und natürlich
weniger Verkehrsunfälle. Die Vorteile zeigen sich schon in den Stadtteilen hier in Berlin, wie im
Prenzlauer Berg im Vergleich zu Neukölln.
Bei einem Spaziergang entlang der Kastanienallee sind die positiven Folgen des Straßenbahnnetzes
öffentlich sichtbar – es gibt kaum Staus, sondern freie Flächen für Fußgänger oder Radfahrer, die
sicher um das Quartier herum navigieren können. Dies führt zu einem angenehmen Umfeld für die
Nachbarn sowie Besucher. Auf der anderen Seite gibt es in Neukölln Hauptstraßen wie die
Sonnenallee oder die Karl-Marx-Straße, die oft von Autos überflutet sind. Hätten diese Straßen ein
eigenes Straßenbahnnetz, wäre man in der Hälfte der Zeit am Hermannplatz, schnell in der
Mittelspur statt in der rechten, hinter einer 100 Meter langen Schlange.
Ich freue mich auf die Gelegenheit, meine Kenntnisse in einem Straßenbahnprojekt anwenden zu
können. Wir bei der GIL würden uns immer um diese Möglichkeit kümmern.

3D-Render einer Hausfassade von GIL GmbH

Neues in der GIL –
Die Verkehrswende ist machbar – wenn wir bestehende Lösungen nutzen

Kollaps oder Aufbruch? Die Verkehrswende beginnt jetzt!

Robin Spurwechsel, 37 Jahre alt, Familienvater und Hundebesitzer, lebt idyllisch in der Oberlausitz. Sein Wunsch ist einfach: mehr Zeit mit seiner Familie verbringen, in Einklang mit der Natur leben und ohne Stress mit Bus oder Bahn zur Arbeit kommen. Doch die Realität sieht anders aus.
Wie jeden Morgen bleibt ihm nichts anderes übrig, als ins Auto zu steigen. Doch heute endet die Fahrt tragisch. Robin wird in einen schweren Unfall verwickelt. Mehrere Menschen werden scher verletzt. Robin sitzt eingeklemmt im Wagen – mit nichts als seinen Gedanken.

Wie es sein könnte…

Stellen wir uns vor, Robins Morgen würde ganz anders beginnen:

Nach einem gemütlichen Frühstück verlässt er das Haus, geht ein paar Schritte zur Haltestelle und steigt in einen Kleinbus, der ihn zum Bahnhof bringt. Dort bleibt noch Zeit für einen Cappuccino und ein Croissant vom Bäcker nebenan. Kurze Zeit später rollt der Zug ein. Robin nimmt entspannt Platz, plaudert mit einem Kollegen über den letzten Abend und genießt die vorbeiziehende Landschaft. Nach weniger als 30 Minuten ist er da – und läuft die letzten Meter zum Büro.
Für viele klingt das nach einer Utopie. Doch in Städten wie Wien, in Luxemburg oder Malta ist das längst Alltag.

Die Verkehrswende ist machbar – wenn wir bestehende Lösungen nutzen

Deutschland könnte viel von diesen Vorbildern lernen. Statt Stau, Lärm und schlechter Luft gibt es dort ein intelligentes, gut getaktetes und oft sogar kostenloses öffentliches Verkehrsnetz. Das Ergebnis? Weniger Autos, mehr Platz, eine entspanntere Gesellschaft – und das ohne Verlust an Mobilität.
Das Beste daran: Wir müssen das Rad nicht neu erfinden. Lösungen existieren bereits. Sie müssen nur erkannt und klug auf die eigene Region übertragen werden.
Hier kommt die SOMMER-Methode 2011 ins Spiel. Als Geschäftsführer der GIL Ganzheitliche Ingenieurleistungen GmbH nutzen wir diesen systemischen Ansatz, um Veränderungsprozesse ganzheitlich anzugehen. Die Methode, entwickelt von Anke Sommer, basiert auf der Idee, dass für jedes gesellschaftliche Problem bereits irgendwo eine funktionierende Lösung existiert – man muss sie nur identifizieren und anpassen.
Und genau das gilt auch für die Verkehrswende: Die Antworten sind da – wir müssen sie nur umsetzen.

5 Schritte, um den Wandel voranzutreiben

Doch Veränderungen brauchen Menschen, die sie anstoßen. Hier sind fünf einfache Schritte, mit denen jeder von uns dazu beitragen kann:

  1. Setze ein Zeichen! Egal in welchem Beruf oder Umfeld – bring deine Unterstützung für die Verkehrswende aktiv zum Ausdruck.
  2. Fordere Veränderung! Sprich Politikerinnen gezielt auf nachhaltige Mobilitätskonzepte an.
  3. Nimm Kontakt auf! Der Bürgermeister oder die Bürgermeisterin deiner Stadt kann ein wichtiger Hebel für eine bessere Verkehrspolitik sein.
  4. Bleib dran! Sprich mit Freundinnen, Familie und Kollegen über das Thema – immer wieder.
  5. Nutze berufliche Netzwerke! In vielen Unternehmen und Organisationen gibt es Wege, um nachhaltige Mobilität voranzutreiben.

Jeder dieser Schritte trägt dazu bei, dass nicht nur Robin Spurwechsel, sondern wir alle sicherer, entspannter und nachhaltiger unterwegs sind.
Die Verkehrswende beginnt heute. Und sie beginnt mit uns! Packen wir es an.

Verkehrsanlagenplaner bei der Arbeit

Bei uns erhalten Sie

Ganzheitliche, ingenieurtechnische Beratung
Projektbegleitung von A-Z
Innovative Projektbearbeitung
Konzepte, Studien, Weiterentwicklung
Ingenieurleistungen für Hoch-, Tief- und Wasserbau

Renderbild neue Hauptbibliothek - geplant von GIL GmbH

Partner & Auftraggeber

Mitgliedschaften & Vereine

Krisensicher dank dem INSTITUT SOMMER

Durch die professionelle Begleitung des INSTITUT SOMMER kommt unser Unternehmen sicher durch jede Krise.